- ホーム>
- テナント物件詳細
テナント物件詳細 TENANT DETAILED INFORMATION
倉庫・工場
札幌市中央区北九条西
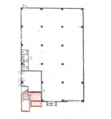
地下鉄「二十四軒駅」徒歩圏内 駐車スペース建物駐車場賃料込です 条件・業種等はお問い合わせ下さい。広々とした専有面積471.15?(約142坪)を誇る、事務所付きの貸倉庫です。鉄筋コンクリート造 駐車場敷地100坪確保可能約380?に駐車出来るだけ駐車出来ます
| 所在地 | 交通 最寄り駅/停 |
徒歩 バス |
賃料(税込) 共益費 |
敷金 礼金 |
階部分 階建 |
広さ | 物件種別 建築年月 |
|---|---|---|---|---|---|---|---|
| 札幌市中央区北九条西 | 札幌市東西線 二十四軒 | 駅徒歩 9分 | 648,000円 0円 |
2000000円
なし |
1階区画 2階建 |
143.2坪 (473.40㎡) |
倉庫・工場 |
※広さの表記について … こちらは、募集上の目安であり、契約面積、登記面積とは異なる場合がございます。
地図
※地図の位置は実際の場所とは異なる場合がございますので、情報掲載元にご確認ください。







