- ホーム>
- テナント物件詳細
テナント物件詳細 TENANT DETAILED INFORMATION
店舗・事務所
札幌市中央区北一条西
地下鉄東西線「大通」駅から徒歩5分のおすすめ物件です。 事務所利用におすすめです。好立地な物件です。 業種・初期費用等、なんでもご相談下さい。
| 所在地 | 交通 最寄り駅/停 |
徒歩 バス |
賃料(税込) 共益費 |
敷金 礼金 |
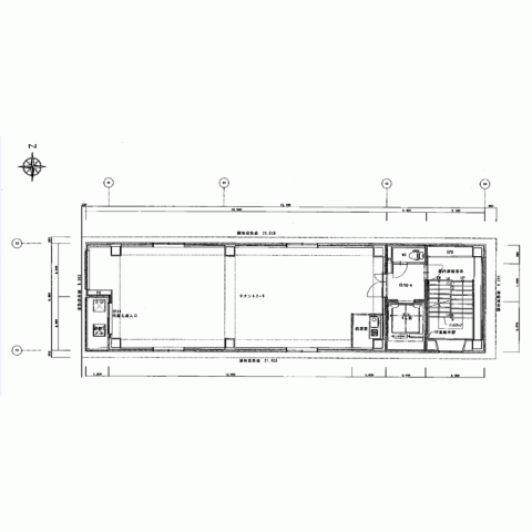
階部分 階建 |
広さ | 物件種別 建築年月 |
|---|---|---|---|---|---|---|---|
| 札幌市中央区北一条西 | 札幌市南北線 大通 | 駅徒歩 5分 | 489,661円 53340円 |
3627120円
なし |
5階部分 8階建 |
26.1坪 (86.41㎡) |
店舗・事務所 |
※広さの表記について … こちらは、募集上の目安であり、契約面積、登記面積とは異なる場合がございます。
地図
※地図の位置は実際の場所とは異なる場合がございますので、情報掲載元にご確認ください。







