- ホーム>
- テナント物件詳細
テナント物件詳細 TENANT DETAILED INFORMATION
倉庫・工場
札幌市東区苗穂町
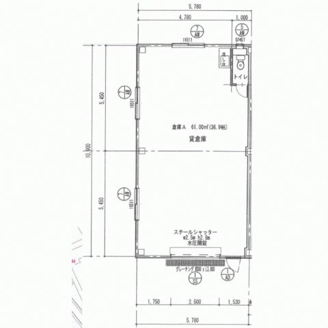
東区苗穂町の貸倉庫に空き予定が出ました。 1階部分の倉庫です。駐車場2台込み。荷物の保管などにいかがでしょうか。業種、諸費用なんでもご相談ください。
| 所在地 | 交通 最寄り駅/停 |
徒歩 バス |
賃料(税込) 共益費 |
敷金 礼金 |
階部分 階建 |
広さ | 物件種別 建築年月 |
|---|---|---|---|---|---|---|---|
| 札幌市東区苗穂町 | 函館本線 苗穂 | 駅徒歩 22分 | 216,000円 0円 |
600000円
なし |
1階部分 2階建て |
19.1坪 (63.00㎡) |
倉庫・工場 |
※広さの表記について … こちらは、募集上の目安であり、契約面積、登記面積とは異なる場合がございます。
地図
※地図の位置は実際の場所とは異なる場合がございますので、情報掲載元にご確認ください。



