- ホーム>
- テナント物件詳細
テナント物件詳細 TENANT DETAILED INFORMATION
倉庫・工場
北広島市大曲
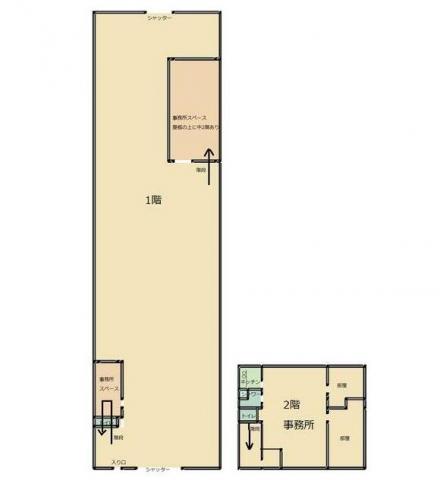
大曲にある倉庫物件です!土地全体(1654.0?・500坪)建物 【1F】205坪・677.68? 【2F】31.17坪・103.04? 有ります!!早めのお問合せお待ちしております!敷金・契約内容等はご相談ください。残置物ですがクレーン付いています。(要確認)
| 所在地 | 交通 最寄り駅/停 |
徒歩 バス |
賃料(税込) 共益費 |
敷金 礼金 |
階部分 階建 |
広さ | 物件種別 建築年月 |
|---|---|---|---|---|---|---|---|
| 北広島市大曲 | 千歳線 上野幌 | 駅徒歩 36分 | 864,000円 0円 |
1600000円
800000円 |
1-2階部分 1階一部2階建て |
236.2坪 (780.72㎡) |
倉庫・工場 |
※広さの表記について … こちらは、募集上の目安であり、契約面積、登記面積とは異なる場合がございます。
地図
※地図の位置は実際の場所とは異なる場合がございますので、情報掲載元にご確認ください。




















