- ホーム>
- テナント物件詳細
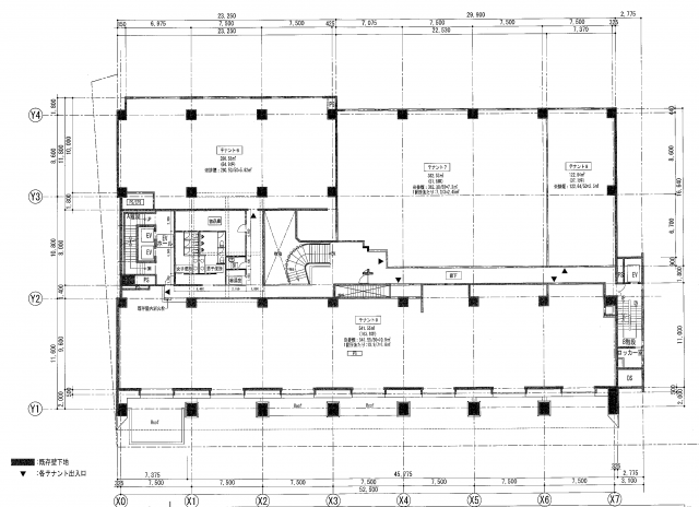
テナント物件詳細 TENANT DETAILED INFORMATION
事務所
札幌市中央区南十三条西
【中央区/中島公園エリア】2023年8月に全面リニューアルした物件です!2階部分に空き予定が出ました。 業種は幅広く募集しておりますのでお気軽にご連絡ください!
| 所在地 | 交通 最寄り駅/停 |
徒歩 バス |
賃料(税込) 共益費 |
敷金 礼金 |
階部分 階建 |
広さ | 物件種別 建築年月 |
|---|---|---|---|---|---|---|---|
| 札幌市中央区南十三条西 | 札幌市南北線 幌平橋 | 駅徒歩 5分 | 1,029,693円 0円 |
5720520円
なし |
2階部分 8階建 |
73.3坪 (242.47㎡) |
事務所 |
※広さの表記について … こちらは、募集上の目安であり、契約面積、登記面積とは異なる場合がございます。
地図
※地図の位置は実際の場所とは異なる場合がございますので、情報掲載元にご確認ください。




