- ホーム>
- テナント物件詳細
テナント物件詳細 TENANT DETAILED INFORMATION
店舗
札幌市白石区栄通
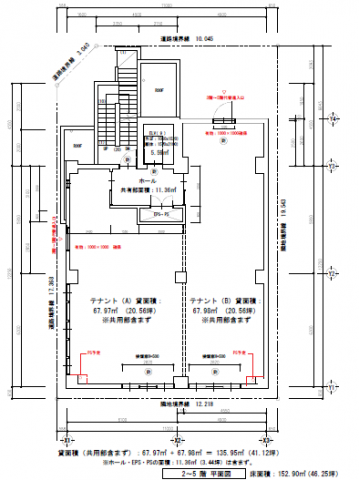
【白石区/新築メディカルビル】医療・福祉関係限定での募集となります。共用の来客用駐車場(ピロティ)あり 袖看板あり 1F〜3Fは既に入居者が決まっており、診療科目が重複する場合お断りさせていただくことがございます。詳細等お早めにお問い合わせください。
| 所在地 | 交通 最寄り駅/停 |
徒歩 バス |
賃料(税込) 共益費 |
敷金 礼金 |
階部分 階建 |
広さ | 物件種別 建築年月 |
|---|---|---|---|---|---|---|---|
| 札幌市白石区栄通 | 札幌市東西線 白石 | 駅徒歩 10分 | 442,800円 33000円 |
1230000円
なし |
5階部分 5階建て |
44.6坪 (147.31㎡) |
店舗 |
※広さの表記について … こちらは、募集上の目安であり、契約面積、登記面積とは異なる場合がございます。
地図
※地図の位置は実際の場所とは異なる場合がございますので、情報掲載元にご確認ください。



