- ホーム>
- テナント物件詳細
テナント物件詳細 TENANT DETAILED INFORMATION
店舗・事務所
札幌市白石区南郷通
【南郷通エリア】東西線「南郷18丁目」徒歩5分、新築マンション1階テナントです。南郷通に面した路面店の区画となります。諸条件ご相談ください!
| 所在地 | 交通 最寄り駅/停 |
徒歩 バス |
賃料(税込) 共益費 |
敷金 礼金 |
階部分 階建 |
広さ | 物件種別 建築年月 |
|---|---|---|---|---|---|---|---|
| 札幌市白石区南郷通 | 札幌市東西線 南郷18丁目 | 駅徒歩 6分 | 178,000円 0円 |
178000円
178000円 |
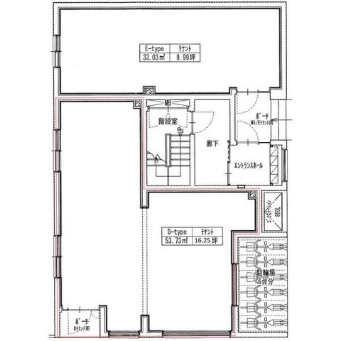
1階部分 4階建 |
16.3坪 (53.73㎡) |
店舗・事務所 |
※広さの表記について … こちらは、募集上の目安であり、契約面積、登記面積とは異なる場合がございます。
地図
※地図の位置は実際の場所とは異なる場合がございますので、情報掲載元にご確認ください。













