- ホーム>
- テナント物件詳細
テナント物件詳細 TENANT DETAILED INFORMATION
事務所
札幌市中央区南二条西
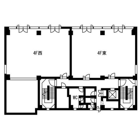
【大通エリア】東西線「西11丁目」徒歩4分、37坪事務所の募集です。2025年7月に壁クロス・天井・タイルカーペット内装済みで室内はきれいになっております。立体駐車場1台分確保可能。諸条件ご相談ください!
| 所在地 | 交通 最寄り駅/停 |
徒歩 バス |
賃料(税込) 共益費 |
敷金 礼金 |
階部分 階建 |
広さ | 物件種別 建築年月 |
|---|---|---|---|---|---|---|---|
| 札幌市中央区南二条西 | 札幌市軌道線 中央区役所前 | 駅徒歩 3分 | 299,376円 60984円 |
1108800円
なし |
4階部分 6階建て |
37.0坪 (122.18㎡) |
事務所 |
※広さの表記について … こちらは、募集上の目安であり、契約面積、登記面積とは異なる場合がございます。
地図
※地図の位置は実際の場所とは異なる場合がございますので、情報掲載元にご確認ください。











