tenpos_logo

札幌のテナント物件・不動産情報ならテンポス札幌【アパマンショップ加盟店】

テナント物件詳細 TENANT DETAILED INFORMATION

事務所 事務所 札幌市中央区南二条西

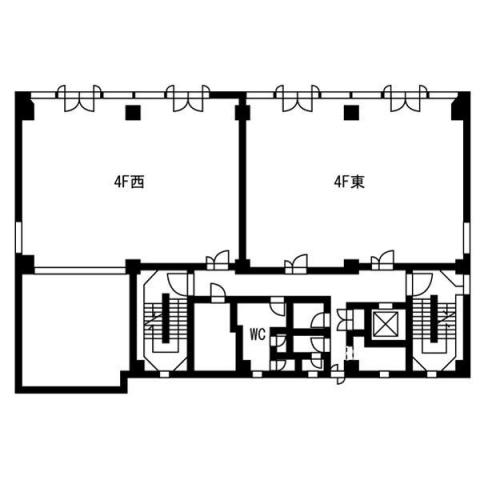
【大通エリア】東西線「西11丁目」徒歩4分、37坪事務所の募集です。2025年7月に壁クロス・天井・タイルカーペット内装済みで室内はきれいになっております。立体駐車場1台分確保可能。諸条件ご相談ください!

所在地 交通
最寄り駅/停
徒歩
バス
賃料(税込)
共益費
敷金
礼金
階部分
階建
広さ 物件種別
建築年月
札幌市中央区南二条西 札幌市軌道線 中央区役所前 駅徒歩 3分 299,376円
60984円
1108800円
なし
4階部分
6階建て
37.0坪
(122.18㎡)
事務所

※広さの表記について … こちらは、募集上の目安であり、契約面積、登記面積とは異なる場合がございます。

logo

TEL:011-867-6667

FAX:011-867-6661

※お問い合わせの際は「お問い合わせ番号」をお伝えいただきますとスムーズです。

お問い合わせ番号:37149

物件概要

お問合せ番号 37149 情報更新日 2025年11月30日
所在地 札幌市中央区南二条西
交通機関 札幌市軌道線 中央区役所前 駅徒歩 3分
札幌市東西線 西11丁目 4分
募集条件 事務所
建物構造 所在階/階建て 4階部分/ 6階建て
入居可能日  
駐車場/形態 有 22,000円 / 立体駐車場
※駐車場の空き状況に関しましてはお問い合わせ下さい。
共有設備
専有設備 電気 、 エアコン 、 照明(残置物) 、 インターネット(現地確認)

お気に入り物件リストに追加する

地図

※地図の位置は実際の場所とは異なる場合がございますので、情報掲載元にご確認ください。

お問い合わせ

logo

TEL:011-867-6667

FAX:011-867-6661

※お問い合わせの際は「お問い合わせ番号」をお伝えいただきますとスムーズです。

お問い合わせ番号:37149

物件のお問い合わせ
ページトップ

お気に入り物件リストに追加されました