- ホーム>
- テナント物件詳細
テナント物件詳細 TENANT DETAILED INFORMATION
店舗・事務所
札幌市東区東雁来八条
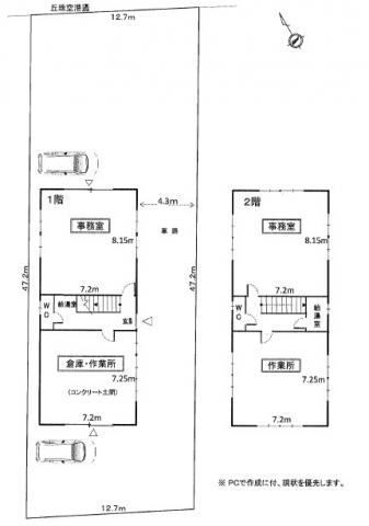
【東雁来エリア】駐車場の台数の確保できる1棟貸しの物件です。1階事務所・倉庫作業所39.42坪 2階事務所・作業所39.42坪 敷地が148.76坪あります。業種条件等はお問い合わせください。内覧は予定を組むことが可能です。空港通りに面しており お勧めです。
| 所在地 | 交通 最寄り駅/停 |
徒歩 バス |
賃料(税込) 共益費 |
敷金 礼金 |
階部分 階建 |
広さ | 物件種別 建築年月 |
|---|---|---|---|---|---|---|---|
| 札幌市東区東雁来八条 | 札幌市東豊線 元町 | 駅徒歩 39分 | 388,800円 0円 |
1080000円
360000円 |
2階建て 2階建て |
78.8坪 (260.64㎡) |
店舗・事務所 |
※広さの表記について … こちらは、募集上の目安であり、契約面積、登記面積とは異なる場合がございます。
地図
※地図の位置は実際の場所とは異なる場合がございますので、情報掲載元にご確認ください。


























