- ホーム>
- テナント物件詳細
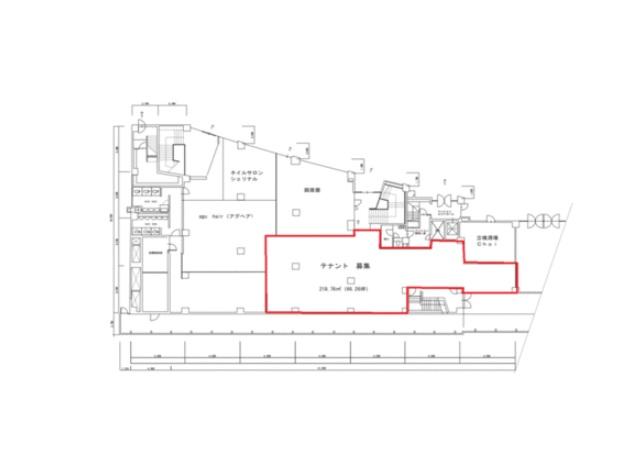
テナント物件詳細 TENANT DETAILED INFORMATION
店舗・事務所
札幌市豊平区平岸二条
【平岸エリア】南北線「平岸」駅直結の複合ビル1階インテナントに空きが出ました。元居酒屋で62坪あり、スケルトンでの引き渡しとなります。地下には飲食街があり集客力のある立地です。諸条件ご相談ください!
| 所在地 | 交通 最寄り駅/停 |
徒歩 バス |
賃料(税込) 共益費 |
敷金 礼金 |
階部分 階建 |
広さ | 物件種別 建築年月 |
|---|---|---|---|---|---|---|---|
| 札幌市豊平区平岸二条 | 札幌市南北線 平岸 | 駅徒歩 1分 | 604,098円 0円 |
1118700円
なし |
1階部分 7階建 |
62.1坪 (205.42㎡) |
店舗・事務所 |
※広さの表記について … こちらは、募集上の目安であり、契約面積、登記面積とは異なる場合がございます。
地図
※地図の位置は実際の場所とは異なる場合がございますので、情報掲載元にご確認ください。


