- ホーム>
- テナント物件詳細
テナント物件詳細 TENANT DETAILED INFORMATION
事務所
札幌市中央区北五条西
【札幌駅西エリア】札幌駅徒歩圏内のシェアオフィスに空きが出ました。3階にはアースカラーを基調とした心地よいラウンジを完備。コミュニティマネージャーが入居者同士のつながりを促進しており、新規案件や協業のチャンスも広がります。是非お問い合わせください!
| 所在地 | 交通 最寄り駅/停 |
徒歩 バス |
賃料(税込) 共益費 |
敷金 礼金 |
階部分 階建 |
広さ | 物件種別 建築年月 |
|---|---|---|---|---|---|---|---|
| 札幌市中央区北五条西 | 函館本線 札幌 | 駅徒歩 11分 | 237,600円 0円 |
660000円
220000円 |
4階部分 6階建 |
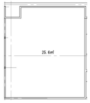
7.7坪 (25.60㎡) |
事務所 |
※広さの表記について … こちらは、募集上の目安であり、契約面積、登記面積とは異なる場合がございます。
地図
※地図の位置は実際の場所とは異なる場合がございますので、情報掲載元にご確認ください。












