- ホーム>
- テナント物件詳細
テナント物件詳細 TENANT DETAILED INFORMATION
店舗・事務所
札幌市厚別区厚別中央二条
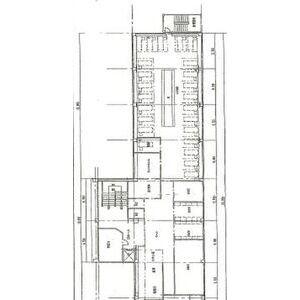
【新札幌エリア】新札幌駅徒歩4分、高架沿いの店舗街の一画で大型テナントの募集です。以前は人工透析内科が入居されておりました。諸条件ご相談ください!
| 所在地 | 交通 最寄り駅/停 |
徒歩 バス |
賃料(税込) 共益費 |
敷金 礼金 |
階部分 階建 |
広さ | 物件種別 建築年月 |
|---|---|---|---|---|---|---|---|
| 札幌市厚別区厚別中央二条 | 千歳線 新札幌 | 駅徒歩 2分 | 2,001,456円 0円 |
なし
1853200円 |
2階部分 3階建て |
185.3坪 (612.62㎡) |
店舗・事務所 |
※広さの表記について … こちらは、募集上の目安であり、契約面積、登記面積とは異なる場合がございます。
地図
※地図の位置は実際の場所とは異なる場合がございますので、情報掲載元にご確認ください。














