- ホーム>
- テナント物件詳細
テナント物件詳細 TENANT DETAILED INFORMATION
店舗・事務所
札幌市白石区南郷通
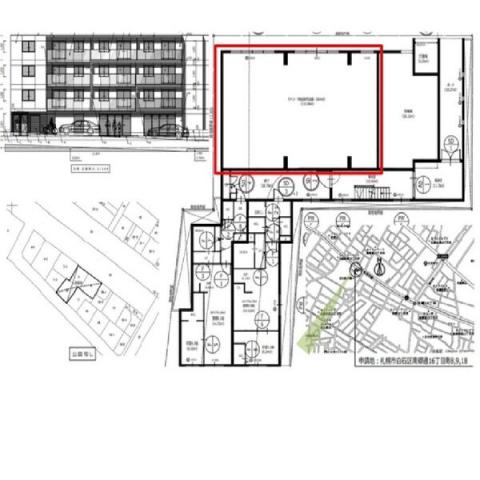
【南郷通に面する新築。】1階の路面店舗区画です。交通量の多い路面に面していて 東西線南郷18丁目駅が徒歩圏内です。お問い合わせください。
| 所在地 | 交通 最寄り駅/停 |
徒歩 バス |
賃料(税込) 共益費 |
敷金 礼金 |
階部分 階建 |
広さ | 物件種別 建築年月 |
|---|---|---|---|---|---|---|---|
| 札幌市白石区南郷通 | 札幌市東西線 南郷18丁目 | 駅徒歩 7分 | 378,000円 5500円 |
700000円
385000円 |
1階部分 4階建 |
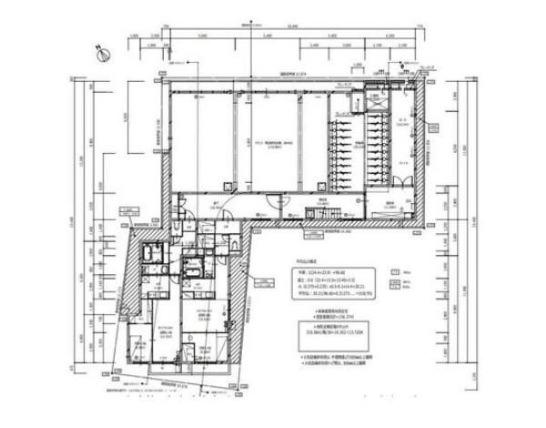
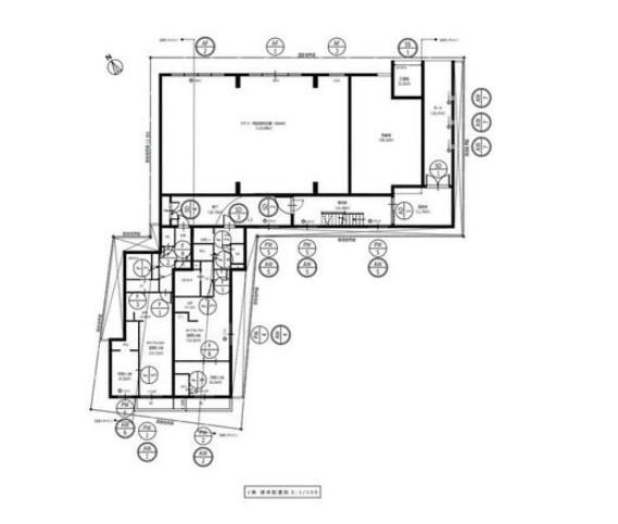
33.5坪 (110.88㎡) |
店舗・事務所 |
※広さの表記について … こちらは、募集上の目安であり、契約面積、登記面積とは異なる場合がございます。
地図
※地図の位置は実際の場所とは異なる場合がございますので、情報掲載元にご確認ください。






