- ホーム>
- テナント物件詳細
テナント物件詳細 TENANT DETAILED INFORMATION
倉庫・工場
札幌市北区新川
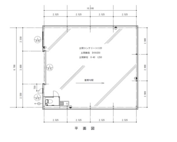
【北区新川エリア】新築の貸倉庫の募集です。倉庫30坪!!上水道(井戸水)・照明・手動シャッター・簡易水洗トイレ(浄化槽)倉庫前面に駐車場確保です。業種・使用用途等はご確認ください。連棟の契約もご相談ください。
| 所在地 | 交通 最寄り駅/停 |
徒歩 バス |
賃料(税込) 共益費 |
敷金 礼金 |
階部分 階建 |
広さ | 物件種別 建築年月 |
|---|---|---|---|---|---|---|---|
| 札幌市北区新川 | 函館本線 発寒 | 駅徒歩 39分 | 216,000円 0円 |
600000円
なし |
平屋建て 平屋建て |
26.6坪 (87.90㎡) |
倉庫・工場 |
※広さの表記について … こちらは、募集上の目安であり、契約面積、登記面積とは異なる場合がございます。
地図
※地図の位置は実際の場所とは異なる場合がございますので、情報掲載元にご確認ください。































