- ホーム>
- テナント物件詳細
テナント物件詳細 TENANT DETAILED INFORMATION
事務所
札幌市中央区大通西
【大通エリア】○大通公園に面した開放的なオフィスビル○「西11丁目」徒歩5分・「大通」徒歩8分 休憩用のラウンジ付きの人気物件に空き予定が出ました。 業種、諸費用なんでもご相談ください。
| 所在地 | 交通 最寄り駅/停 |
徒歩 バス |
賃料(税込) 共益費 |
敷金 礼金 |
階部分 階建 |
広さ | 物件種別 建築年月 |
|---|---|---|---|---|---|---|---|
| 札幌市中央区大通西 | 札幌市軌道線 西8丁目 | 駅徒歩 4分 | 2,171,988円 390390円 |
24133200円
なし |
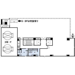
9階部分 9階建 |
118.3坪 (391.10㎡) |
事務所 |
※広さの表記について … こちらは、募集上の目安であり、契約面積、登記面積とは異なる場合がございます。
物件概要
| お問合せ番号 | 37452 | 情報更新日 | 2026年04月30日 |
|---|---|---|---|
| 所在地 | 札幌市中央区大通西 | ||
| 交通機関 |
札幌市軌道線 西8丁目
駅徒歩 4分
札幌市東西線 西11丁目 5分 |
||
| 募集条件 | 事務所 | ||
| 建物構造 | SRC(鉄骨鉄筋コンクリート造) | 所在階/階建て | 9階部分/ 9階建 |
| 入居可能日 | 相談 2026/5/11入居可 | ||
| 駐車場/形態 |
有
33,000円
/ 機械式
※駐車場の空き状況に関しましてはお問い合わせ下さい。 |
||
| 共有設備 | 電気 | ||
| 専有設備 |
電気
トイレ(共用部)有・冷房個別・暖房個別・OAフロア・電気代:70,980円+検針・冷暖房費:検針・床:OA150mm(タイルカーペット仕様)・壁:EP塗装・天井:ユニット式システム天井・天井高2,800mm・照明LED |
||
地図
※地図の位置は実際の場所とは異なる場合がございますので、情報掲載元にご確認ください。








