- ホーム>
- テナント物件詳細
テナント物件詳細 TENANT DETAILED INFORMATION
店舗・事務所
札幌市豊平区平岸二条
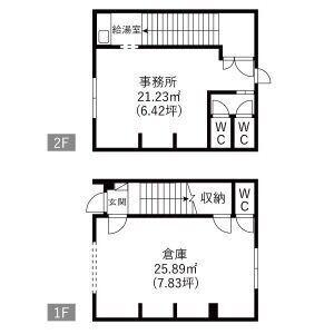
【新築】【2026年7月完成予定】 地下鉄 南北線 平岸駅 徒歩3分。 人気の倉庫付き事務所タイプの物件です。前面に無料駐車場4台込み。 業種、諸費用なんでもご相談ください。
| 所在地 | 交通 最寄り駅/停 |
徒歩 バス |
賃料(税込) 共益費 |
敷金 礼金 |
階部分 階建 |
広さ | 物件種別 建築年月 |
|---|---|---|---|---|---|---|---|
| 札幌市豊平区平岸二条 | 札幌市南北線 平岸 | 駅徒歩 3分 | 237,600円 0円 |
660000円
なし |
1〜2階部分 2階建 |
14.3坪 (47.12㎡) |
店舗・事務所 |
※広さの表記について … こちらは、募集上の目安であり、契約面積、登記面積とは異なる場合がございます。
地図
※地図の位置は実際の場所とは異なる場合がございますので、情報掲載元にご確認ください。













