- ホーム>
- テナント物件詳細
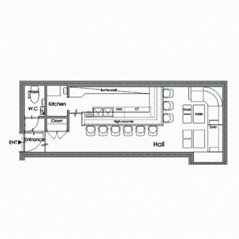
テナント物件詳細 TENANT DETAILED INFORMATION
店舗
札幌市中央区南五条西
すすきの内にある大型商業施設ビル^^ 地下鉄南北線すすきの駅や東豊線豊水すすきの駅からも アクセスしやすい好立地物件!カウンター席のコンパクトなレイアウト。 是非1度ご覧ください^^
| 所在地 | 交通 最寄り駅/停 |
徒歩 バス |
賃料(税込) 共益費 |
敷金 礼金 |
階部分 階建 |
広さ | 物件種別 建築年月 |
|---|---|---|---|---|---|---|---|
| 札幌市中央区南五条西 | 札幌市南北線 すすきの | 駅徒歩 4分 | 177,660円 39050円 |
なし
なし |
9階部分 13階建 |
12.6坪 (41.66㎡) |
店舗 |
※広さの表記について … こちらは、募集上の目安であり、契約面積、登記面積とは異なる場合がございます。
地図
※地図の位置は実際の場所とは異なる場合がございますので、情報掲載元にご確認ください。









